최홍순
(Hong-Sun Choi)
1
허무원
(Moo-won Heo)
2†iD
이현호
( Hyun-Ho Lee)
2
류정식
( Jeong-Sik Ryu)
3
-
동양대학교 건설공학과 박사과정
(Doctoral program, Department of Construction Engineering, Dongyang University, Dongducheon
11307, Rep. of Korea)
-
동양대학교 스마트건축공학과 교수
(Professor, Department of Smart Architecture Engineering, Dongyang University, Yeongju
36040, Rep. of Korea)
-
㈜에스알텍 대표이사
(CEO, SR Tch, Seoul 02636, Rep. of Korea)
Copyright © Korea Concrete Institute(KCI)
키워드
CFT 공법, 인장시험, 에너지 소산 능력, 반복가력실험, 내진보강
Key words
concrete-filled tube, pull-out test, energy dissipation capacity, loading cycle test, seismic retrofit
1. 서 론
국내 지진 발생 현황을 보면, 충주지진(2025), 포항지진(2017) 및 경주지진(2016) 등 규모 3.0 이상의 지진이 다수 발생하고 있다(Fig. 1 참조, AIK 2018). 이는 대규모 지진이 국내에도 발생할 가능성이 매우 큰 상황을 보여준다. 이러한 지진에 대한 피해를 방지하기 위하여 건축물에 대한 내진설계기준이
더욱 강화되었고(ACI 2019; MOLIT 2019), 국내의 경우 비 내진설계 된 중층 및 저층 철근 콘크리트 구조물의 내진성능을 향상시키기 위한 다양한 내진보강 연구가 활발히 진행되어 왔다(Lee et al. 2009, 2018; Cheng et al. 2021; Yoo and Choi 2022; Lee et al. 2023; Hur et al. 2020, 2023).
내진보강공법은 전통적으로는 단면 증설이나 강재 가새 및 전단벽 추가 등이 많이 활용되었으나, 최근 들어 건물 외부에 보강 부재를 설치하여 건물의 사용
중단을 최소화하고 내진성능을 높이는 공법들이 많이 적용되고 있다. 대표적으로는 건물 외곽에 강재 프레임이나, 브레이스를 설치하여 내력을 증진시키는
공법과 에너지 소산 능력을 향상시키는 공법 등이 많이 활용되고 있다. 다만, 강재 프레임 및 브레이스를 설치하는 공법의 경우 보강 부재의 강성 증가로
인한 기초보강 및 시공상 제약 등의 단점도 지적되어 이를 보완하기 위한 다양한 공법 연구로 이어지고 있다.
이에 본 논문에서는 저층 철근 콘크리트 건축물에 적합한 내진보강공법(concrete filled steel tube, CFT)을 제안하고 내진성능향상
효과를 비교·분석하고자 한다. 이를 위하여 기존 구조체와 CFT를 직접 연결하는 앵커의 소재 시험 및 CFT를 적용한 기둥부재 성능실험을 실시하고자
한다. 또한, 철근 콘크리트 2층 1스팬 실험체와 CFT로 보강된 실험체를 제작하여 반복가력 실험을 통하여 내진성능향상 효과를 비교 분석하고자 한다.
Fig. 1 Concrete failure following the Gyeongju and Pohang earthquakes
2. 마디부재 CFT 내진보강공법의 개요
마디부재 CFT(concrete filled steel tube, CFT) 보강대상 수직부재의 경우 구조체 표면에 기계식 앵커로 설치되는 ㄷ-베이스플레이트와
이 플레이트에 용접으로 또 다른 ㄷ-Plate를 결합한다. 신구접합부 사이를 에폭시 주입 후, 생성된 ㅁ-Plate 사이에 콘크리트 또는 모르타를
타설한 후 기존 구조체와 일체화 시킨다. 수평부재의 경우에는 기계식 앵커로 H형강의 웨브를 정착시키고 연결부 사이를 콘크리트 타설하여 기존 구조체와
일체화 시킨다. 외부에 노출된 마디부재 CFT에 녹막이 페인트를 칠하고 그 위에 내화페인트를 도포한다. 주요부재는 공장 제작이며, 앵커와 콘크리트
타설 부분만 현장 시공한다. 마디부재 CFT 공법의 장점은 ① 사전제작으로 인한 가변성이 뛰어남, ② 기존 골조와 일체화가 뛰어남, ③ 조망권 확보가
가능함. ④ 시공의 정밀도 및 경제성이 뛰어남 및 ⑤ 구조성능 개선이 뛰어나다(Fig. 2).
Fig. 2 Concrete-filled tube (CFT) detailing
3. 실험체 설계 및 계획
마디부재 CFT의 내진성능향상 효과를 검증하기 위하여 ① 단일앵커 성능시험(인발 및 전단), ② 단일부재(기둥)의 반복가력 성능실험 및 ③ 2층 골조
실험을 통하여 마디부재 CFT 공법의 내진성능향상 효과를 검증하고자 하였다.
3.1 앵커 성능 시험 계획(Kwon et al. 2024)
기존 구조체와 마디부재 CFT 내진보강공법의 연결 요소인 앵커의 성능입증을 위하여 콘크리트 시험체(1,800 mm×1,800 mm×300 mm, b×d×h)을
제작하고 후설치 앵커(M16) 인발시험용 15개, 전단시험용 15개를 매립한 후 인발시험과 전단시험을 계획하였다. Fig. 3에 콘크리트 시험체 제작 전경을 나타낸 그림이며, 후설치 앵커는 콘크리트 타설 후 28일 경과 후 콘크리트 압축강도 검토 후 블록 당 9개씩 설치하였다.
28일 후 콘크리트 압축강도는 평균 22.4 MPa로 나타났다. Fig. 4는 인장 및 전단 시험 시 셋팅 전경을 나타낸 것이다.
Fig. 3 Concrete block production
Fig. 4 Anchor test set-up
3.2 마디부재 CFT로 보강된 기둥부재의 실험 계획
마디부재 CFT 보강공법은 적용되는 CFT의 두께와 크기에 따라 내진성능향상 효과가 다르게 나타난다. 이를 확인하여 설계에 반영하기 위하여 기존 보강
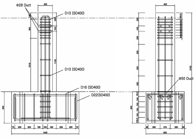
부재의 크기와 두께를 변수로 하여 성능평가 실험을 수행하였다. 마디부재 CFT 내진성능향상 효과를 검토하기 위하여 Table 1과 같은 실험체 변수를 계획하였고, Fig. 5는 기준 실험체 배근도를 나타낸 그림이다.
단일부재의 반복가력 성능실험을 위해 Fig. 6과 같이 ① 기둥 부재 콘크리트 실험체 제작, ② 기둥 부재 천공 및 ㄷ-베이스 플레이트 설치 ③ ㄷ-베이스 플레이트 용접 설치 및 ④ 콘크리트 타설
순으로 제작하였다. Table 2는 콘크리트의 설계기준압축강도($f_{ck}$) 시험결과를 나타내었고, 시험결과, 평균 콘크리트 압축강도는 24.4 MPa를 나타내었다. 또한, 철근은
금속재료 인장시험편 규정(KS B 0801)(KATS 2017) 2호의 규정에 따라 시험편을 제작하여, 금속재료 인장 시험방법(KS B 0802)(KATS 2017)에 따라 시험을 실시하였다. Table 3에 철근의 인장시험결과를 나타내었다.
Fig. 7은 기준 실험체(DFSS-00)의 셋팅 전경을 나타내었다. 목표 압축력($P_{u}/(A_{g}×f_{ck})$의 10 %)을 가력하기 위하여기둥
상부에 수평으로 철골보를 설치하였고, 철골보 양 끝에 유압잭을 사용하여 압축력을 가력하였다. 실험 시 압축력을 일정하게 유지할 수 있도록 유압잭을
하부 힌지에 연결하였다. 액추에이터를 기둥과 연결한 후 반복가력 로딩 사이클(Loading cycle)에 따라 가력하였고, 로딩 사이클은 기둥의 순높이에
대한 횡변위의 비로 계산하였다. 1 사이클 당 3회씩 10개의 사이클로 계획하였고, 스텝별 변위를 Table 4에 나타내었다.
Fig. 5 Specimen dimensions (unit: mm)
Fig. 6 Experimental specimen production
Table 1 Experimental variables
|
Specimen
|
Variable
|
|
DFSS-00
|
Reference specimen
|
|
CFTS-01
|
Size 150 mm×150 mm, Plate 9t, with Stud Bolt
|
|
CFTS-02
|
Size 150 mm×150 mm, Plate 12t, with Stud Bolt
|
|
CFTS-03
|
Size 200 mm×200 mm, Plate 9t, with Stud Bolt
|
|
CFTS-04
|
Size 200 mm×200 mm, Plate 12t, with Stud Bolt
|
|
CFTS-05
|
Size 150 mm×150 mm, Plate 9t, without Stud Bolt
|
Table 2 Characteristic values of concrete
|
No
|
Concrete strength (MPa)
|
Modulus of elasticity
(MPa)
|
|
$f_{ck}$
|
$f_{ck.ave}$
|
|
1
|
24.5
|
24.4
|
2.12×104
|
|
2
|
23.3
|
|
3
|
25.8
|
|
4
|
25.6
|
|
5
|
24.1
|
|
6
|
23.5
|
Table 3 Material properties of rebar and steel bar
|
Main bar
|
Yield strength
(MPa)
|
Yield strain
(×10-5)
|
Tensile strength
(MPa)
|
Elongation
(%)
|
|
HD13
|
398.3
|
487.5
|
182,099
|
17.7
|
|
HD16
|
495.3
|
560.6
|
190,378
|
22.5
|
Table 4 Loading history
|
Cycle
|
1
|
2
|
3
|
4
|
5
|
6
|
7
|
8
|
9
|
10
|
|
Drift (%)
|
0.1
|
0.3
|
0.5
|
1.0
|
1.5
|
2.0
|
2.5
|
3.5
|
5.0
|
7.0
|
|
Displ. (mm)
|
1.1
|
3.3
|
5.5
|
11.0
|
16.5
|
22.0
|
27.5
|
38.5
|
55.0
|
77.0
|
3.3 마디부재 CFT로 보강된 2층 골조 실험 계획
마디부재 CFT를 적용한 외부보강골조 2개와 기준이 되는 기준 실험체 1개에 대한 반복가력실험을 계획하였다(Table 5).
기준 실험체의 부재 단면상세는 표준 설계도를 따랐으며, 부재 길이는 운반과 실험실 조건 등을 고려하여 약 3/4 수준으로 축소하였다(Fig. 8). 기둥(500 mm×350 mm) 및 보(250 mm× 450 mm)의 단면치수(폭×춤)는 표준 설계도에 따라 설계하였다. 기둥에 사용된 주근은
12-D19 및 2-D16이 사용되었으며, 보에 사용된 주근은 중앙부와 단부로 나누어 중앙부의 경우 5-D19(상부근 2-D19, 하부근 3-D19)가
사용되었고, 단부의 경우 5-D19(상부근 3-D19, 하부근 2-D19)가 사용되었다. 스터럽은 기둥, 보, 보-기둥 접합부에 동일하게 D10@300으로
적용하였다. 보강재로 사용되는 마디부재 CFT의 치수와 연결부 배치는 현재 내진보강 실무에서 가장 많이 사용되는 크기를 토대로 결정하되 실험실의 양중
무게를 고려하여 계획하였다. CFT-03과 CFT-04의 차이는 CFT 기초 고정여부에 따라 차이를 두었다. 마디부재 CFT의 설치 순서는 ① 철거
및 바탕면 처리, ② 베이스 플레이트 앵커 설치,③ 베이스 플레이트 및 보강부재 용접결합, ④ 콘크리트 타설 및 양생 순으로 설치하였다(Fig. 8).
Fig. 8 Concrete-filled tube (CFT) construction
2층 골조 실험은 마디부재 CFT 보강 골조의 극한강도, 파괴모드 및 내진성능을 파악하기 위하여 정적 반복가력 실험을 실시하였고, 에너지 소산능력
및 내진성능 향상효과를 분석하였다. 단일 엑추에이터를 이용하여 1층과 2층 상부 슬래브에 2:1 비율의 횡하중이 도입되는 상황을 모사하였다. 또한,
양단 보-기둥 접합부 후면에는 지그를 설치하여 지그 간의 변형이 발생하지 않도록 결속하였다. 기준 실험체 및 마디부재 CFT 보강 실험체에 횡하중
가력 시, 구속효과에 의하여 실제 거동의 왜곡을 방지하고 슬래브의 전단파괴를 방지할 목적으로 슬래브 두께를 130 mm보다 큰 180 mm로 설계하였다.
단, 슬래브 두께를 증가시킨 대신 슬래브 폭은 상대적으로 작게 설계하였다.(보 폭 250 mm, 슬래브 폭 900 mm). 변위 측정을 위해 총 8개의
LVDT를 설치하였다(Fig. 9). 반복가력 로딩 사이클은 층간 변위비 1.0 %까지는 0.25 % 간격으로 나누어 계획하였고, 1.0 % 이후로는 0.5 % 간격으로 계획하였다.
1 사이클 당 3 사이클씩 가력 하였다(Table 6). Fig. 10은 실험체 셋팅도를 나타낸 것이며, 실험을 위하여 기둥의 축력은 $P_{u}/(A_{g}×f_{ck})$의 10 %인 630 kN을 기둥에 압축력으로
가력하였다(Kwon et al. 2024).
Fig. 9 Details of the test structur (unit: mm)
Fig. 10 Two-story structural setup
Table 5 Details of test specimens (unit: mm)
|
Specimen
|
Reinforcement method
|
Reinforcement size
(SHN355)
|
|
NRCS-00
|
-
|
|
|
CFT-03
|
CFT
|
CFT-300×300×12 (Column)
H-200×200×8×12 (Girder)
Installing the subfloor bracket
|
|
CFT-04
|
CFT
|
CFT-300×300×12 (Column)
H-200×200×8×12 (Girder)
Installing the subfloor bracket
|
Table 6 Loading history
|
Cycle
|
1
|
2
|
3
|
4
|
5
|
6
|
7
|
8
|
9
|
10
|
|
Drift (%)
|
0.25
|
0.35
|
0.50
|
0.75
|
1.00
|
1.50
|
2.00
|
2.50
|
3.00
|
3.50
|
|
Displ. (mm)
|
13.75
|
19.25
|
27.50
|
41.25
|
55.00
|
82.50
|
110.0
|
137.5
|
165.0
|
192.5
|
4. 실험결과
4.1 앵커 성능 시험결과
앵커의 인발강도 시험결과, 모든 앵커는 콘 파괴 형태로 파괴되었다. 평균 인발강도는 27.9 kN으로 나타났으며, 해당 앵커의 제조사에서 제시하고
있는 설계강도인 21.7 kN을 상회하는 것으로 나타났다. 또한, 10개 앵커의 표준편차는 2.1 %로 나타났고, 변동계수는 12.0 %로 나타났다.
앵커의 평균 전단강도는 28.7 kN을 나타났으며, 10개 앵커의 표준편차는 2.7 %, 변동계수는 10.0 %로 나타났다(Kwon et al. 2024).
4.2 마디부재 CFT로 보강된 기둥부재의 내진보강 효과
Fig. 11은 기준 실험체 및 마디부재 CFT 보강된 기둥부재 실험체의 최종파괴 형상을 나타내었다. 기준 실험체인 DFSS-00 실험체는 층간변위비 0.3 %에서
하부에 미세한 휨 균열이 발생하였고, 층간변위비 1.5 %에서 휨 균열과 전단균열이 동시에 발생하였다. 층간변위비 3.5 %(38.5 mm)에서 실험을
종료하였다.
CFTS-01 실험체는 2 Step(3.3 mm, 0.30 %)에 미세한 휨 균열이 발생하였고 5 Step(16.5 mm, 1.50 %) 정가력 시
CFT 보강재의 앵커 위치에서 균열이 발생하였다. 8 Step(38.5 mm, 3.50 %) 가력 시 기둥 단부에서 압괴 및 콘크리트가 파괴되면서
하중 감소가 발생하였다. CFTS-02 실험체는 2 Step(3.3 mm, 0.30 %)에서 기둥 하부에 미세한 균열이 발생하였다. 5 Step(16.5
mm, 1.50 %) 기둥 단부에서 휨 균열 및 전단균열이 발생하였다. 8 Step(3.3 mm, 0.30 %) 시 기둥 단부에서 압괴가 발생하였고,
이후 하중이 감소하면서 실험을 종료하였다. CFTS-03 실험체는 2 Step(3.3 mm, 0.30 %) 시 미세한 균열이 발생하였다. 8 Step(38.5
mm, 2.50 %) 시 기둥 단부에서 압괴가 발생하면서 기초까지 균열이 확장되었다. 9 Step(55 mm, 5.00 %)에서는 균열의 확장과 기둥
단부가 파괴되어 실험을 종료하였다. CFTS-04 실험체는 2 Step(3.3 mm, 0.30 %) 시 기둥과 기초 접합부에서 미세한 균열이 발생하였다.
7 Step(27.5 mm, 2.50 %) 정가력 시 기둥 단부에서 전단균열이 발생하였고, 부가력 시 기둥 단부에서 압괴가 발생하면서 기초까지 균열이
확장되었다. 10 Step(77 mm, 7.00 %) 정가력 시 콘크리트가 파괴되어 철근이 노출되었고, 최대하중의 약 50 % 이하로 떨어지면서 실험을
종료하였다. CFTS-05 실험체의 경우 2 Step(3.3 mm, 0.30 %) 부가력 시 미세한 균열이 발생하였다. 5 Step(16.5 mm,
1.50 %) 정가력 시 기둥 단부에서 콘크리트 압괴가 발생하기 시작하였다. 9 Step(55 mm, 5.00 %) 정가력에서 기둥 단부의 콘크리트
압괴와 균열의 폭과 양이 증가되면서 기둥 단부가 파괴되었다. 이후 최대하중의 약 40 % 정도 내력이 감소되어 실험을 종료하였다.
Fig. 12와 Table 7은 기준 실험체 및 마디부재 CFT 보강실험체의 하중-변위 이력곡선 및 실험결과를 나타낸 것이다. 그림에서 알 수 있듯이 기준 실험체의 경우 최대하중
이후 급격한 내력감소로 인해 실험이 종료되었지만, 마디부재 CFT를 보강한 실험체들은 최대하중 이후에도 급격한 강도 저감이 나타나지 않는 것을 알
수 있다.
Fig. 11 Photographs showing column specimen cracking
Fig. 12 Load-displacement relationship of columns
Table 7 Test results of concrete-filled tube (CFT) column specimens
|
Specimens
|
Yield load
Vy (kN)
|
Yield displacement
uy (mm)
|
Maximum load
Vu (kN)
|
Maximum displacement
uu (mm)
|
|
DFSS-00
|
99.8
|
16.5
|
116.7
|
38.5
|
|
CFTS-01
|
109.2
|
19.3
|
130.2
|
33.7
|
|
CFTS-02
|
113.7
|
17.6
|
143.6
|
30.9
|
|
CFTS-03
|
124.2
|
15.3
|
159.3
|
34.5
|
|
CFTS-04
|
125.9
|
27.5
|
161.3
|
45.9
|
|
CFTS-05
|
104.9
|
17.2
|
129.1
|
34.1
|
4.3 마디부재 CFT로 보강된 2층 골조 실험 결과
4.3.1 균열 및 파괴양상
Fig. 13은 기준 실험체 및 마디부재 CFT 보강 실험체의 최종파괴 형상을 나타내었다. 기준 실험체는 1 Step(13.75 mm, 0.25 %) 정가력 시
1층 기둥 중앙부에서 균열이 발생하였고, 부가력 시 1층 보-기둥 접합부에서 균열이 발생하였다. 4 Step (41.25 mm, 0.75 %)에서는
1층의 기둥 단부에서 중심부로 균열이 확장되었고, 부가력 시 지중보에서 균열이 발생하였다. 6 Step(82.5 mm, 1.50 %) 부가력 시 각
층의 보-기둥 접합부에서 다수의 균열이 발생하였고, 기둥 하부에서 콘크리트가 박리가 나타났다. 8 Step(137.5 mm, 2.50 %) 정가력에서
1층 기둥 단부에서 전단파괴가 발생하였다. 콘크리트 피복이 떨어져 나가면서 수직 철근이 노출되었고, 부가력 시 급격하게 내력 감소가 발생하여 실험을
종료하였다.
CFTS-03 실험체는 1 Step(13.75 mm, 0.25 %)에서 1층 및 2층 기둥 단부(하부)에서 균열이 발생하였고, 부가력 시 2층 기둥
단부(상부)에서 균열이 발생하였다. 2 Step(19.25 mm, 0.35 %)에서 기둥의 기존 균열이 확장되었고, 보-기둥 접합부에서 균열이 발생하였다.
3 step(27.5 mm, 0.50 %) 에서는 각층의 보와 기둥에서 기존 균열이 확장되었고, 기둥 단부의 균열이 중앙부로 확장되었다. 4 Step(41.25
mm, 0.75 %) 정가력 시 1층 기둥 단부(하부)의 균열이 지중보로 확장되었으며, 부가력 시 1층 보에 균열이 다수 발생하였다. 5 Step(55
mm, 1.00 %)에서 지중보와 보강재를 연결하는 접합부에서 대각 방향의 균열이 다수 발생하였다. 6 Step(82.5 mm, 1.50 %)에서는
정가력 시 1층 기둥 단부(하부)의 기존 균열이 기초의 상부와 중앙부로 확장되었고, 마지막 부가력 시 1층 기둥 단부(하부)에서 콘크리트 피복 박리가
발생하였다. 7 Step(110.00 mm, 2.00 %) 정가력 시 지중보와 보강재의 접합부에서 균열이 다수 발생하였고, 부가력 시 가력 위치의
1층 기둥 단부(하부)에서 전단균열로 인해 콘크리트가 박리되었다. 8 Step(137.50 mm, 2.50 %) 정가력 시 지속적으로 콘크리트 피복이
탈락되었고, 1층 지중보에서 균열이 다수 발생 및 확장되어 콘크리트가 파괴되었다. 부가력 시 지중보와 보강재의 접합부 면을 따라 균열이 기초까지 확장되었다.
9 Step(165 mm, 3.00 %) 정가력 시 기둥 단부에서 기둥 주근의 좌굴이 발생하였고, 전단파괴로 인해 콘크리트가 다수 탈락되어 실험을
종료하였다.
CFTS-04 실험체의 경우 1 Step(13.75 mm, 0.25 %)에서 1층 기둥 단부(하부) 및 2층 보-기둥 접합부에서 초기 균열이 발생하였다.
2 Step(19.25 mm, 0.35 %)에서 기존 균열이 확장되었고, 1층 보의 단부에서 균열 다수 발생하였다. 3 Step(27.5 mm, 0.50
%)에서 1층 보 단부의 균열이 중앙부로 확장되었고, 1층 기둥 단부(하부)의 균열도 중앙부로 확장되었다. 4 Step(41.25 mm, 0.75
%)에서는 1층 보-기둥 접합부의 균열이 다수 발생하여 기둥 단부(상부)로 확장되었고, 2층 보 단부에서 균열이 다수 발생하였다. 5 Step(55
mm, 1.00 %)에서 각층의 기붕과 보의 기존 균열이 확장되었고, 지중보와 보강재의 접합부 면을 따라 균열이 발생하였다. 6 Step(82.5
mm, 1.50 %)에서는 지중보와 보강재의 접합부에서 콘크리트 피복 박리가 발생하였고, 1층 기둥 단부(하부)에서 대각 균열이 발생하였다. 부가력
시 각층의 접합부에서 발생한 균열이 기둥 단부(상부)로 확장되었다. 7 Step(110.00 mm, 2.00 %) 정가력 시 1층 기둥 단부(하부)의
전단균열이 기둥 중앙부로 확장되었고, 지중보에서도 수직균열이 발생하였다. 부가력 시 지중보와 보강재의 접합부에서 균열이 다수 발생하여 콘크리트 피복
박리가 발생되었다. 8 Step(137.50 mm, 2.50 %)에서는 1층 기둥의 전단균열이 확장되어 전단파괴가 발생하였고, 이로 인해 기둥 주근이
노출되었다. 9 Step(165 mm, 3.00 %)에서는 1층 기둥 단부에서 지속적으로 콘크리트 박리가 발생하였고, 지중보와 보강재 접합부의 균열이
기초로 확장되어 내력이 급격하게 감소하여 실험을 종료하였다.
Fig. 13 Two-story cracking
4.3.2 하중-변위 관계
Fig. 14와 Table 8은 기준 및 마디부재 CFT가 보강된 실험체의 하중-변위 이력곡선 및 실험결과를 나타낸 것이다. NCRS-00는 127.3 kN(23.1 mm)에서
항복하였고, 최대강도는 245.2 kN(109.3 mm)을 나타내었다. 최대변위 137.5 mm(층간변위비 2.5 %)에서 내력이 크게 감소하여 실험을
종료하였다. 최종 파괴 상황 시 1층 기둥 단부에서 대각균열로 인한 핀칭 현상이 두드러지게 나타났다.
CFTS-03 실험체는 465.07 kN(41.55 mm)에서 항복하였으며, 최대강도는 577.8 kN(81.04 mm)을 나타내었고, 최대변위 137
mm(층간변위비 2.5 %) 첫 번째 싸이클을 가력한 후 실험을 종료하였다. CFTS-03 실험체는 기준 실험체 대비 약 2.37배(정가력 및 부가력)의
최대강도를 나타내었다. CFTS-04 실험체는 522.07 kN(58.23 mm)에서 항복하였으며, 최대강도는 632.89 kN(109.39 mm)을
나타내었고, 최대변위 165.0 mm(층간변위비 3.0%) 첫 번째 싸이클을 가력한 후 실험을 종료하였다. CFTS-04 실험체는 기준 실험체 대비
약 2.58배(정가력 및 부가력)의 최대강도를 나타내었다.
CFTS-03 실험체와 CFTS-04 실험체는 동일한 보강 부재를 사용하였지만, 기초 고정 유무에 따라 최대내력은 약 10 % 내외로 나타나 최대강도는
유사한 것으로 확인되었다. 이는 CFT 보강공법의 경우, 기존 부재와 보강부재 간에 설치된 앵커의 효과가 내력 증진 효과에 큰 지배를 하여 나타난
것으로 판단된다.
Fig. 14 Load-displacement relationships
Table 8 Material properties of rebar and steel bar
|
Specimens
|
Yield load
$V_{y}$ (kN)
|
Yield displacement
$u_{y}$ (mm)
|
Maximum load
$V_{u}$ (kN)
|
Maximum displacement
$u_{u}$ (mm)
|
|
NCRS-00
|
127.27
|
23.12
|
245.24
|
109.25
|
|
CFTS-03
|
465.07
|
41.55
|
577.80
|
81.04
|
|
CFTS-04
|
522.07
|
58.23
|
632.89
|
109.39
|
4.3.3 에너지 소산능력
2층 골조 실험결과에 대한 에너지 소산능력은 식 (1)을 이용하여 산정하였다(Fig. 15).
여기서, $F(x)$: 하중이력, $\triangle x$: 변위 증분
실험체의 이력거동에 따른 소산 에너지량($E_{D}$)을 각 싸이클에 따라 구하였고, CFT-03 및 CFT-04의 에너지 소산량과 NRCS-00을
비교한 상대비를 Fig. 16에 나타내었다. NFCS-00 대비 CFT-03 실험체는 약 2.2배 CFT-04 실험체는 약 2.25배의 에너지 소산능력이 향상되었음을 확인할 수
있다.
Fig. 15 Energy dissipation of specimens
Fig. 16 Energy dissipation ratio of NCRS-00 to CFT
5. 결 론
마디부재 CFT 내진성능향상 효과를 검증하기 위하여 앵커 시험, 단일 부재의 반복가력 성능실험 및 2층 골조 실험을 통해 얻은 결론은 다음과 같다.
1) 마디부재 CFT 기둥 보강 실험체의 실험결과, 항복하중은 모든 실험체에서 기준 실험체 대비 약 105 %에서 125 % 내외로 증가하였고, 최대하중은
110 %에서 140 %로 증가하였다.
2) 마디부재 CFT로 보강된 2층 골조 실험결과, CFTS-03 실험체는 기준 실험체 대비 약 2.37배의 최대강도를 나타내었다. 또한, CFTS-04
실험체는 기준 실험체 대비 약 2.58배의 최대강도를 나타내었다. CFTS-03 및 CFTS-04는 동일한 크기의 보강부재(CFT-300×300×12)가
사용되었으며, 기초 고정 유무에 따라 최대내력은 약 10 % 내외로 증가하는 것으로 나타났다. 이는 마디부재 CFT 보강공법의 경우 기초고정의 유무가
강도증진효과에 큰 역할을 하는 것으로 판단된다.
3) 기준 실험체 대비 CFTS-03 실험체는 약 2.2배, CFTS-04 실험체는 약 2.25배의 에너지 소산능력이 향상된 것으로 나타났다. 또한,
에너지 소산비율에 대한 평균값이 CFTS-03은 2.22, CFTS-04는 2.23으로 나타나 마디부재 CFT 보강에 의한 에너지 소산이 크게 이루어지고
있는 것을 알 수 있다. 이러한 에너지 소산능력의 증진은 마디부재 CFT 내진보강공법으로 강도와 변형 능력의 증진에 따른 결과라고 사료된다.
감사의 글
본 논문은 한국연구재단 창의도전연구기반지원사업(과제번호: NRF-2022R1I1A1A0106389911)에 의한 결과의 일부이며 이에 감사드립니다.
References
ACI Committee 318 (2019) Building Code Requirements for Structural Concrete (ACI 318-19)
and Commentary. Farmington Hills, Michigan, USA: American Concrete Institute.

AIK (2018) Site Inspection and Damage Investigation of Buildings by Earthquakes in
Gyeongju and Pohang. Seoul, Korea; Spacearts Co., Architectural Institute of Korea
(AIK), 1-347. (In Korean)

Cheng, Z. X., Kim, S. B., Lee, B. G., and Lee, K. S. (2021) An Experimental Study
on Seismic Retrofitting Effects of Two-Story R/C Frames Strengthened with NSF External
Connection Method. Journal of the Korea Concrete Institute 33(2), 175-183. (In Korean)

Hur, M. W., Lee, S. H., and Lee, B. S. (2020) Seismic Performance Evaluation of Non-seismic
Designed Low-rise RC Frame Using the Kagome System. Journal of the Korea Concrete
Institute 32(5), 465-472. (In Korean)

Hur, M. W., Park, T. W., Lee, S. H., and Park, H. S. (2023) Seismic Retrofitting of
Existing Reinforced Concrete Columns Using Binding Column Method. Journal of KSMI
26(5), 119-127. (In Korean)

KATS (2017) Test Pieces for Tensile Test for Metallic Materials (KS B 0801). Seoul,
Korea: Korea Agency for Technology and Standards (KATS), Korea Standard Association
(KSA). (In Korean)

KATS (2018) Method of Tensile Test for Metallic Materials (KS B 0802). Seoul, Korea:
Korea Agency for Technology and Standards (KATS), Korea Standard Association (KSA).
(In Korean)

Kwon, J. S., Hur, M. W., Lee, H. H., and Ryu, J. S. (2024) Seismic Performance Evaluation
of Non-Seismic Reinforced Concrete Buildings Strengthened by Double Frame Method.
Journal of the Korea Concrete Institute 36(3), 235-242. (In Korean)

Lee, E. K., Kim, J. T., Baek, H. J., and Lee, K. S. (2023) Seismic Capacity Evaluation
of Existing R/C Buildings Retrofitted by Internal Composite Seismic Strengthening
Method Based on Pseudo-dynamic Testing. Journal of the KSMI 27(2), 67-76. (In Korean)

Lee, K. S., and Jung, J. S. (2018) A Seismic Capacity of R/C Building Damaged by the
2016 Gyeongju Earthquake Based on the Non-linear Dynamic Analysis. Journal of the
KSMI 22(1), 137-146. (In Korean)

Lee, K. S., Wi, J. D., Kim, Y. I., and Lee, H. H. (2009) Seismic Safety Evaluation
of Korean R/C School Buildings Built in the 1980s. Journal of KSMI 13(5), 1-11. (In
Korean)

MOLIT (2019) Seismic Design of Buildins (KDS 41 17 00). Sejong, Korea: Ministry of
Land, Infrastructure and Transport (MOLIT). 122. (In Korean)

Yoo, C. G., and Choi, C. S. (2022) An Experimental Study on Seismic Performance of
Two-story Reinforced Concrete Frames Retrofitted with Internal Steel Frame and Wall
Type Friction Damper. Journal of the Korea Institute of Structural Maintenance and
Inspection 26(6), 64-72. (In Korean)
